Produs adaugat in cos
Continua cumparaturile Finalizare comanda
Pompe de caldura Pompe de caldura Centrale Termice Centrale Termice Panouri solare Panouri solare Incalzire prin Pardoseala Incalzire prin Pardoseala Automatizari - Accesorii Automatizari - Accesorii Chillere Chillere Aer conditionat Aer conditionat Radiatoare / Calorifere / Convectoare Radiatoare / Calorifere / Convectoare Aeroterme industriale Aeroterme industriale Boilere si Puffere Boilere si Puffere Vane de amestec Vane de amestec Accesorii si armaturi pentru instalatii Accesorii si armaturi pentru instalatii Casa si gradina Casa si gradina Echipamente gaz Echipamente gaz Pompe si hidrofoare Pompe si hidrofoare Vase de expansiune Vase de expansiune Tevi - Izolatii pentru instalatii Tevi - Izolatii pentru instalatii Statii de dedurizare Statii de dedurizare Robineti industriali Robineti industriali Climatizare rezidentiala - industriala Climatizare rezidentiala - industriala Stingerea incendiilor Stingerea incendiilor Echipamente industriale Echipamente industriale Scule si unelte pentru instalatori Scule si unelte pentru instalatori

Cazan otel in condensatie IVAR Industry ECOCOND 580 - 570.4 kW

IVAR Industry
Cere detalii la departamentul de vanzari !

 

Cod produs:   PFC1130580
Producator:   IVAR Industry
Relatii clienti
Contact: +40787531154
Email: comenzi@arenainstalatiilor.ro
ESTIMARE COST TRANSPORT
Greutate reala/volumetrica: 1130.00 kg



PIF -ul pentru centralele termice conform PT A

Punerea in functiune (PIF)  reprezinta o serie de verificari si reglaje, obligatorii conform prescriptiei tehnice ISCIR PT A1 din 2010, care se fac la finalizarea executiei instalatiei.

A nu se nu confunda cu instalarea produsului sau cu autorizatia de functionare (AF-ul)  !

Pentru realizarea PIF-ului este necesara obtinerea de catre beneficiar a AUTORIZATIEI DE FUNCTIONARE a centralelor termice fie pe lemne, peleti sau pe gaz.

 

ACEST SERVICIU NU E INCLUS IN PRETUL PRODUSELOR COMERCIALIZATE PE WWW.ARENAINSTALATIILOR.RO. TAXELE POT VARIA IN FUNCTIE DE TIPUL DE ECHIPAMENT ACHIZITIONAT, ELE POT FI COMUNICATE TELEFONIC DE CATRE PARTENERII DE SERVICE AI PRODUCATORILOR SAU IMPORTATORILOR ,CE SE REGASESC IN LISTA DE PARTENERI SERVICE LA LIVRAREA ECHIPAMENTELOR ALATURI DE FACTURA PRODUSELOR SI A CERTIFICATULUI DE GARANTIE !

 

 


Citeste mai mult
Nota de informare privind prelucrarea datelor cu caracter personal - GPDR

Având în vedere prevederile Regulamentului (UE) 2016/679 al Parlamentului European şi al Consiliului din 27 aprilie 2016, privind protecția persoanelor fizice în ceea ce privește prelucrarea datelor cu caracter personal și libera circulație a acestor date şi abrogarea Directivei 95/46/CE, societatea ARENA INSTALATORILOR SRL doreşte să işi asume angajamentul cu privire la respectarea legislației aplicabile domeniului datelor cu caracter personal astfel încât să ne bucurăm în continuare de încrederea dumneavoastră (“ARENA INSTALATORILOR SRL” şi/sau “Societatea”).

 

Această notă de informare este detalierea a cum, când și de ce vă prelucrăm datele cu caracter personal atunci când achiziționați un produs existent într-unul din magazinele fizice ARENA INSTALATORILOR SRL sau în magazinul virtual www.arenainstalatiilor.ro , când vizitați website-ul nostru sau aplicația mobilă sau aveți interacțiuni cu noi, condițiile în care le putem dezvălui altora și cum le păstrăm în condiții de siguranță.

 

Dacă aveți orice întrebare privind modalitatea în care vă prelucrăm datele dumneavoastră cu caracter personal:

 

 -vă puteți adresa Responsabilului cu Protecția Datelor ARENA INSTALATORILOR SRL la adresa de e-mail office@arenainstalatiilor.ro sau

 -ne puteți contacta prin poştă /curier la punctul de lucru al nostru din Bucuresti, strada Nutu ION, nr. 8-10, sector 5


Citeste mai mult
Specificatii produs
Putere [kW] 570.4
Preparare apa calda Numai incalzire - boiler optional
Tip ardere Condensare
Boiler Fara boiler
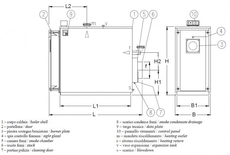
Descriere Cazan otel in condensatie IVAR Industry ECOCOND 580 - 570.4 kW

Cazan otel in condensatie IVAR Industry ECOCOND 580 - 570.4 kW

 

- Putere nominala: 570.4 kW;

- Puterea focarului: 599 kW;

- Presiune focar: 5.5 mbar;

- Capacitate boiler: 698 dm³;

- Presiune maxima: 5 bar;

- Randament: 104.4% (30°C);

- Greutate gol: 1130 kg.

 

Cazan otel in condensatie IVAR Industry ECOCOND 580 - 570.4 kW

 

- ECOCOND este un cazan in condensatie din otel cu emisii reduse de noxe, fara arzator.

- Cazan monobloc, cu trei treceri de fum (combustie sub presiune - scazut NOx scazut), cu o flacara care trece si podea umeda, in intregime din otel inoxidabil pentru a lucra (folosind gaze naturale) la temperaturi foarte scazute / condensare, obtinand astfel randamente foarte mari si economii puternice de combustibil.

- Temperatura de retur a sistemului poate fi > 15°C folosind gaz metan ( > 40°C cu combustibil lichid).

- Cazanul din seria ECOCOND este recomandat pentru utilizarea in sisteme cu functionare redusa temperatura (sisteme de podea, sisteme cu corpuri de incalzire de suprafata mari etc.) si garanteaza, datorita proprietatilor sale, o protectie eficienta impotriva coroziunii acide a condensare.

 

Caracteristici principale:

· Poate functiona cu orice tip de arzator compatbil ca putere (G20, G31, tip M, CLU, mixt);

· Recuperarea caldurii latente prin condensarea aburului prezent in cosul de fum;

· eficienta energetica ridicata ce asigura o functionare ecologica a sistemului;

· Tablou de comanda pentru arzator in doua trepte inclus.

 

Accesorii incluse in pachet:

· Izolatie cu vata minerala si manta din otel inoxidabil;

· Turbulatoare din otel inoxidabil;

· Contra-flanse pe racordurile hidraulice cu flansa;

· Panou de comanda cu unitate de comanda electronica pentru cazan cu arzator Modul single / Bistumn / Modulating.

 

Accesorii la cerere:

· Dispozitiv de neutralizare a acidului;

· Gaura placii arzatorului;

· Arzator.

Alte produse din categorie
Intrebari si raspunsuri Cazan otel in condensatie IVAR Industry ECOCOND 580 - 570.4 kW
Categorii recomandate
Informatii despre garantia produselor
Punerea in functiune (PIF)  reprezinta o serie de verificari si reglaje, obligatorii conform prescriptiei tehnice ISCIR PT A1 din 2010, care se fac la finalizarea executiei instalatiei.A nu se nu confunda cu instalarea produsului sau cu autorizatia de functionare (AF-ul)  ! Pentru realizarea PIF-ului este necesara obtinerea de catre beneficiar a AUTORIZATIEI DE FUNCTIONARE a centralelor termice fie pe lemne, peleti sau pe gaz.   ACEST SERVICIU NU E INCLUS IN PRETUL PRODUSELOR COMERCIALIZATE PE WWW.ARENAINSTALATIILOR.RO. TAXELE POT VARIA IN FUNCTIE DE TIPUL DE ECHIPAMENT ACHIZITIONAT, ELE POT FI COMUNICATE TELEFONIC DE CATRE PARTENERII DE SERVICE AI PRODUCATORILOR SAU IMPORTATORILOR ,CE SE REGASESC IN LISTA DE PARTENERI SERVICE LA LIVRAREA ECHIPAMENTELOR ALATURI DE FACTURA PRODUSELOR SI A CERTIFICATULUI DE GARANTIE !    
Pe langa orice alte garantii prevazute de legile aplicabile si detaliate in Certificatul de Garantie emis de catre Vanzator sau de un furnizor al Vanzatorului, acestea garanteaza Cumparatorul impotriva oricarei non conformitati care poate afecta intreaga sau o parte a Bunurilor si Serviciilor, cu exceptia uzurii normale, pentru a perioada speficicata in certificat de la data emiterii facturii de vanzare sau punerea in functiune in cazul centralelor termice ce detin certificat de la furnizor . Exceptie fac produsele consumabile, care nu beneficiaza de garantie.
GARANȚIE EXTINSĂ VAILLANT     Vaillant Garantie Plus – Liniste pe termen lung Programul "Vaillant Garantie Plus" este creat pentru a va oferi siguranta si confort in utilizarea sistemelor de incalzire, protejandu-va de costuri neasteptate. Aceasta garantie suplimentara optionala permite extinderea perioadei standard de garantie (2 ani) cu inca 3 sau 5 ani, pentru o protectie totala de pana la 7 ani.   Cum puteti beneficia de garantia extinsa     Achizitionati un echipament Vaillant pe gaz (sub 40 kW) de la un distribuitor autorizat.     Asigurati-va ca primiti certificatul de garantie Vaillant.     Instalarea si punerea in functiune trebuie efectuate de un partener de service autorizat Vaillant   Activarea garantiei     Se face la instalare sau in termen de 6 luni de la instalare, dar nu mai tarziu de 12 luni de la data achizitiei (conform facturii).     Pentru a pastra garantia activa, trebuie efectuate verificari tehnice periodice (la fiecare 2 ani), de catre personal autorizat.   Costuri pentru garantia extinsa 3 ani garantie suplimentara: 525 lei   5 ani garantie suplimentara: 875 lei  
Informatii despre modalitatile de plata
Magazinul www.arenainstalatiilor.ro este administrat de SC ARENA INSTALATORILOR SRL societate inregistrata la Registrul Comertului sub numarul J40/5518/2020, avand codul unic de inregistrare RO 42545194. Arena Instalatorilor este marca inregistrata la OSIM cu numarul 167295, iar drepturile de utilizare apartin proprietarului.    WWW.ARENAINSTALATIILOR.RO comercializeaza si distribuie o gama completa de echipamente ca centrale termice, boilere, sisteme solare, echipamente de climatizare, sisteme de tratare apa, electrovane , incalzire in pardoseala, robineti industriali, cazane de abur si sisteme de automatizari pentru instalatii termice si de climatizare.
Termenii si conditiile generale se vor aplica tuturor vanzarilor de bunuri si servicii de catre ARENA INSTALATORILOR SRL, prin intermediul magazinului virtual www.arenainstalatiilor.ro catre Cumparator si pot fi modificate numai cu acordul expres scris al ambelor parti.  
Pentru orice nelamurire legata de orice oferta din Cazane otel fara arzator, nu ezitati sa contactati reprezentantii nostri de vanzari.
In categoria preturile sunt in lei si includ TVA.
Fotografia produsului Cazan otel in condensatie IVAR Industry ECOCOND 580 - 570.4 kW are caracter orientativ si poate contine accesorii ce nu sunt incluse in pachetul standard al produsului.
Specificatiile tehnice sunt informative, in conformitate cu datele transmise de catre producatorii sau distribuitorii autorizati; ele pot fi modificate fara instiintare prealabila si nu constituie obligativitate contractuala, aceleasi conditii se aplica si pretului produsului.
Toate promotiile prezente pe WWW.ARENAINSTALATIILOR.RO sunt valabile in limita stocului.
Echipa WWW.ARENAINSTALATIILOR.RO face toate eforturile pentru a elimina orice erori. Fiecare produs beneficiaza de garantia specifica data de catre producatorul sau distribuitorul autorizat in Romania. Toate marcile apartin detinatorilor legali.
 
Articole recomandate
Punerea in functiune (PIF)  reprezinta o serie de verificari si reglaje, obligatorii conform prescriptiei tehnice ISCIR PT A1 din 2010, care se fac la finalizarea executiei instalatiei.A nu se nu confunda cu instalarea produsului sau cu autorizatia de functionare (AF-ul)  ! Pentru realizarea PIF-ului este necesara obtinerea de catre beneficiar a AUTORIZATIEI DE FUNCTIONARE a centralelor termice fie pe lemne, peleti sau pe gaz.   ACEST SERVICIU NU E INCLUS IN PRETUL PRODUSELOR COMERCIALIZATE PE WWW.ARENAINSTALATIILOR.RO. TAXELE POT VARIA IN FUNCTIE DE TIPUL DE ECHIPAMENT ACHIZITIONAT, ELE POT FI COMUNICATE TELEFONIC DE CATRE PARTENERII DE SERVICE AI PRODUCATORILOR SAU IMPORTATORILOR ,CE SE REGASESC IN LISTA DE PARTENERI SERVICE LA LIVRAREA ECHIPAMENTELOR ALATURI DE FACTURA PRODUSELOR SI A CERTIFICATULUI DE GARANTIE !    
Având în vedere prevederile Regulamentului (UE) 2016/679 al Parlamentului European şi al Consiliului din 27 aprilie 2016, privind protecția persoanelor fizice în ceea ce privește prelucrarea datelor cu caracter personal și libera circulație a acestor date şi abrogarea Directivei 95/46/CE, societatea ARENA INSTALATORILOR SRL doreşte să işi asume angajamentul cu privire la respectarea legislației aplicabile domeniului datelor cu caracter personal astfel încât să ne bucurăm în continuare de încrederea dumneavoastră (“ARENA INSTALATORILOR SRL” şi/sau “Societatea”).   Această notă de informare este detalierea a cum, când și de ce vă prelucrăm datele cu caracter personal atunci când achiziționați un produs existent într-unul din magazinele fizice ARENA INSTALATORILOR SRL sau în magazinul virtual www.arenainstalatiilor.ro , când vizitați website-ul nostru sau aplicația mobilă sau aveți interacțiuni cu noi, condițiile în care le putem dezvălui altora și cum le păstrăm în condiții de siguranță.   Dacă aveți orice întrebare privind modalitatea în care vă prelucrăm datele dumneavoastră cu caracter personal:    -vă puteți adresa Responsabilului cu Protecția Datelor ARENA INSTALATORILOR SRL la adresa de e-mail office@arenainstalatiilor.ro sau  -ne puteți contacta prin poştă /curier la punctul de lucru al nostru din Bucuresti, strada Nutu ION, nr. 8-10, sector 5